ご挨拶
認定こども園捜真幼稚園は、教会が設立した園としてキリスト教に基づく保育を実践してきました。一人一人が神様によって造られた尊い存在であるという基本的な価値観に基づき、人との比較による「優越感」ではなく、自分は尊い存在なのだという「自己肯定感」をはぐくむことを大切にしてきました。そのことが生きる土台となるからです。自己肯定感がしっかりすると、自分を大切にするとともに、お友だちも神様に造られた存在として大切にすることができるようになります。
一人の卒園生が久しぶりに幼稚園に立ち寄りました。園長が「幼稚園時代の一番の思い出は何ですか」と尋ねたところ、「いろいろありますけれど、自分はこの園で大切にされたなという思いが残っています」と答えました。このことは、保育に携わる私たちにとって、喜びと励ましを与えてくれました。捜真幼稚園は、このような保育を、より良い環境の中で続けていくために、新たな園舎の建築に取り組みます。創立以来70年が経つと、中には3世代が卒園生というご家族もおられます。さらに次の世代の子どもたちを育てるために皆様のご協力をお願いします。
理事長 小野慈美
新園舎コンセプト
事業概要
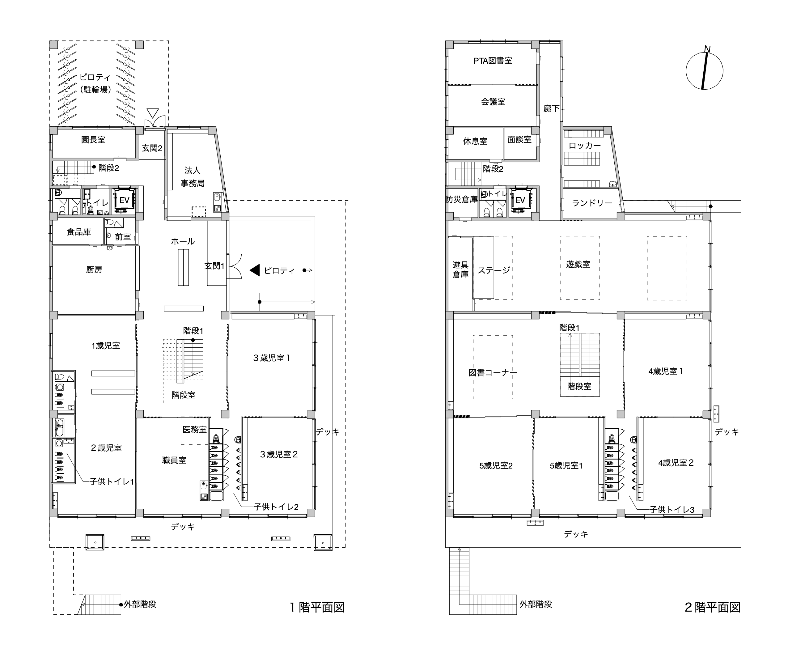
| 所在地 | 横浜市神奈川区栗田谷42-43 |
|---|---|
| 敷地 | 2018㎡ |
| 建物 | 園舎 S造2階建 面積 1218㎡ はなれ 木造2階建 面積 298㎡ |
| 事業内容 | 認定こども園 |
| 総事業費 | 10億円 |
| 募金目標 | 1億円 |
寄附金募集要項
| 金額 | 一口個人 3万円法人 10万円 |
|---|---|
| 募金期間 | 2025年11月~2029年3月 |
| 募金方法 | 銀行振込(手数料はご負担ください) |
| お振込先 | 横浜銀行(0138) 六角橋支店(371) 普通預金 6054844 学校法人捜真バプテスト学園 認定こども園捜真幼稚園 (ガッコウホウジンソウシンバプテストガクエン ニンテイコドモエンソウシンヨウチエン) |
皆様の温かいご支援を心よりお願い申し上げます
